HOME
ABOUT US
COMPANY BACKGROUND
NETWORK OF FUVENTURE
TEAM PORTFOLIO
GROUP DIRECTOR
COMPANY WORKFORCE
ASSOCIATE RESEARCH PARTNER
PRODUCTS & SERVICES
FACILITIES RENTING
QUALITATIVE STUDIES
QUANTITATIVE FIELDWORK & DATA PROCESSING
OUR EXPERIENCE
TYPE OF STUDIES
CATEGORY
CLIENTELE
PHOTO GALLERY
JOBS AVAILABLE
CONTACT
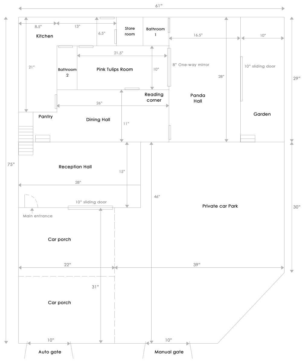
Home - Photo Gallery - Floor Plan
GROUND FLOOR
FIRST FLOOR
Home
About Us
Team Portfolio
Products & Services
Our Experience
Photo Gallery
Jobs Available
Contact
Site Map